有限会社東横デザインリフォーム
リフォームご相談窓口
03-6459-8511
メールでの
お問合せ
ホーム
施工事例集
お客様の声
トクトク情報
会社案内
施工事例集
WORKS
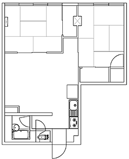
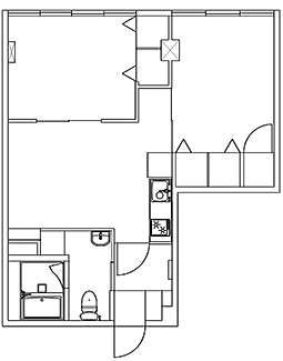
Tマンション一室 全面改修工事
水廻りの間取り変更,和室→洋室
住宅形態
賃貸マンション
工期
20日間
施工費用
約300万円
図面
内装
水まわり
【キッチン】
【トイレ】
【洗面】
ホーム
施工事例集
お客様の声
トクトク情報
会社案内
業務内容紹介
住まいの基礎知識
リフォームの流れ
お役立ち情報
応援メーカーリンク
所在地の案内