築50年の戸建を古民家風にリモデル!
【建物種別】 一戸建て 【リモデル費用】 800万円
【工期】 75日 【工事面積】 59m² 【築年数】 50年
おばあちゃんが一人で暮らす築50年の再建築不可物件に、次女家族が移り住むこと。一挙に6人家族に増えるため、古民家風に再生しました。
-



- 子供達もそれぞれ独立し、おばあちゃんが一人で暮らす、築50年の家。
82歳になられたおばあちゃんが心配だということで、次女家族が
同居することになりました。
家族は一挙に6人家族に!
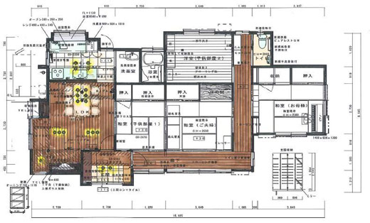
数ある和室をそれぞれの個室に割り当てたものの、
みんなで食事するダイニングや集まってくつろぐリビングがありません。
4畳半の和室と、たんすで仕切られた狭いDK。


- お孫さんは一番下が小学生、まだまだ家族団らんが必要。
そこで、キッチンと隣の和室を繋げ、LDKにリモデルする計画が
スタートしました。
部屋をつなげるにあたって、取りたかった柱が撤去できない。
それなら、その柱を活かして特注のテーブルを作ろう!
天井を落としたら、形はいびつだけどしっかりした梁が現れた、
それなら、これを活かして魅せる梁にしよう!
現場で試行錯誤した古民家風再生住宅が完成しました。
構造上抜けなかった柱を囲む形で作ったテーブル。
家族が増えるので、6人で囲めるサイズにしてあり、
手暗がりにならない様、LEDダウンライトを3個ずつ配置、調光が可能。
解体時に現れた既存の梁をわざと見せて、古民家の雰囲気に一役かっている。
左奥の棚は、ダイニングの椅子を兼用して使う
新しい家族のパソコンコーナーとなりました。


テレビを置くには高すぎる出窓収納。


- すこしでもくつろぐ部屋を広くしたいと、南側に増築。
テレビ置き台を兼ねたカウンター収納を取付ました。
リビング
キッチン
- 狭くて老朽化した以前のキッチン。


- 鏡面の扉、光沢のある床に変えて明るいキッチンになりました。



玄関
- 以前の玄関。これでは収納が足りません。


- 収納が増えた玄関。6人分のくつを収納。

-
思い切ってここまでリモデルして
皆が家に対しての不安を捨て、それぞれの生活に前向きになれてすごくよかったとお客様。
耐えない笑い声が、新しいテーブルの周りでいつも聞こえることでしょう。






