漏水事故戦闘記録 (横浜市都筑区 K様邸)
| 【建物種別】 マンション | 【リモデル費用】 720万円 | 【工期】 20日 |
| 【工事面積】 8m² | 【築年数】 15年 |
Before Voice
上の階からの漏水事故!(三回目だそうです・・・)
もう我慢ができない!と、大幅なリモデルを決意。キッチンも同時に交換。
グリーンリモデル診断を実施、窓の構造上残念ながらインナーサッシが採用できず、ガラス交換で対応。エコポイントも活用しました。
お悩みの理由とその解決方法
1.漏水による汚水で汚れたトイレ・洗面台・お風呂を交換したい。
2.結露がひどい。隣接する線路の音が気になる。
3.キッチンの収納を充実させたい。
解決策として
1.水回り機器を一新。
2.プラマードがつかない為、ガラス交換で対応。
ユニットバスを交換して、エコポイントの段差解消も申請。
3.対面カウンターも交換し、キッチンの長さをのばして収納を確保。
漏水事故戦闘記録
上の階から、三回目の漏水事故。
温厚なお施主様も、さすがに堪忍袋の尾が切れました!
ここからが長い闘いでした・・・。ようやく手に入れたのは、夢の実現!



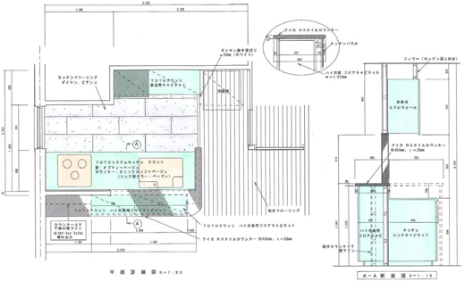
リビング・キッチン

1.カウンター正面に収納を作りたい。

1.すっきり片付いたLDK。カウンターのしたにも収納を設置。

2.キッチン入口。

2.カウンターもすっきり。

3.収納で一杯一杯のキッチン。

3.キッチンもすっきり。

4.床材を変えて明るくなったキッチン。
浴室・洗面所・トイレ

4.壁がびしょびしょになった洗面化粧台。

5.一新した水回り、化粧台も新しくなった。

5.換気扇から水が落ちていたトイレ。

6.洗面化粧台とトイレ。

7.レストパルに変えて、お掃除もらくらくになったトイレ。アクセントのクロスが効いている。

6.トイレ入口とUB。

8.トイレとユニットバス。

7.一週間、上階からの汚水が落ち続けたUB。

9.新しくなったユニットバス。

8.点検口から水が落ちていた洗面室。


10.調湿する天井材にして、湿気対策も万全。
After Voice
生活スタイルの変化
悪夢のような事故から長い間我慢しましたが、保険もおり、思い通りの水回りを実現することができました。一緒に闘ってきたリフォームデザインの皆様のお陰です。
リモデルしてスマイルになったこと
グリーンリモデル診断で、設備機器に対する意識が高くなり新しいものにより変えたくなりました。
水回りも気持ちが良くて、これ以上事故が繰り返されないことを切実に祈っております。
キッチンも新しくなり、今まで以上に料理が楽しくなりました。
家族の時間が増え、笑顔が増えてとても大満足です。






