カビと暗さからの解放 (藤沢市 H様邸)
| 【建物種別】 マンション | 【リモデル費用】 632万円 | 【工期】 30日 |
| 【工事面積】 62m² | 【築年数】 32年 |
リモデル前のお施主様のお悩み・ご要望
◆築35年も経過し老朽化しており、全体的に薄暗い。物も増えて部屋が狭く感じる。
◆冬は寒いし、外壁側がコンクリ直で結露の為にカビが発生している。
◆お風呂はタイルユニットで、清掃が大変。
洗面所の開戸が廊下側に開く為、邪魔になる。
◆キッチンが狭く、収納家具やゴミ箱などを置いてるのでコンロ前に立てないしカウンターが低く腰が痛い。
◆和室も隣家側にカビが発生している
お悩みの理由とお施主様に提案した解決方法
外壁に面した室内側壁に25o厚の断熱材を施工し、窓はすべて二重サッシを取り付け。
全体的に建具、設備等を、明るい色に仕上げ、統一感をだし、空間が広く感じるようにした。
LD、和室、ご主人の書斎が閉鎖的だったのを、壁を撤去し、引き戸によってオープンな空間になるようにした。
風の通りも良くなります。
玄関に大き目の収納を取り付け、靴だけでなく、日用品も収納できるようにした。
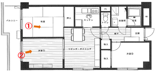
図面


設計コンセプト
【提案内容】
◆外壁に面した室内側壁に、25o厚の断熱材を施工し、窓は全て二重サッシを取付けました。
◆全体に、建具、設備等を明るい色に仕上げ、統一感を出し、空間が広く感じる様にしました。
◆LD・和室・ご主人様の書斎が閉鎖的だったのを、壁を撤去し、3枚引戸を2ヶ所に設けオープンな空間になるようにしました。
◆玄関に大きめの収納を取付け、靴だけでなく、日用品も収納できるようにしました。
◆給水・給湯管も全て、ポリブデン管に交換するようご提案しました。
◆ドアは全て交換し、使い勝手を考慮し開き戸を引戸にしたり大きさも変更しました。
◆照明も全て、LEDにし省エネを考慮しました。
◆台所の照明は汚れ易いので、ダウンライトに変更しました。
キッチン・玄関

キッチンが狭く、収納スペースが少ない。
ゴミ箱や物を置いているので、コンロ前に立てない


③ システムキッチンになり、収納が増え、カウンター上がすっきりしました。
ゴミ箱収納付家電収納カウンターも設置したので、コンロ前に立てるようになりました。

玄関廻りは収納が少なく、下駄箱の上部スペースをなんとか利用したい。

⑥大きめの玄関収納を取付け、靴だけでなく、廊下に置いてあった生活用品も収納でき、玄関まわりがスッキリしました。
収納の扉もホワイト系にしたので、圧迫感もなく以前より広く感じました。
洋室1

窓際の和室が納戸の様になっている。
昼間でも暗い感じがするので、明るい部屋にしたい。



2面の壁を抜いて引き違い戸にし、風通しが良くなった。

⑤和室⇔書斎、LD⇔書斎の壁を抜き1間半の引戸を取り付け、3部屋が一体になり明るく開放感のある部屋になりました。普段は開け放しております。
完全にオープンでなく引き戸で仕切っているため、ご主人様が仕事に集中したい時は締切り、プライベードな空間になります。
老朽化した和室は、畳をメンテナンスもし易い、半畳縁なし和紙畳を入れ、襖紙をモダンな柄のクロスに張替え、他の洋室と一体となってもなじむモダンな和室にしました。
浴室・洗面所・トイレ


収納たっぷりの洗面台

浴室はタイル貼りで、掃除が大変です。

④ユニットバスにしたことで、掃除が楽になりました。
1116サイズのコンパクトなユニットの為、手摺の位置も標準位置でなくショールームでご主人様にシュミレーションしていただき決定し、使い易い位置に取り付けました。


②老後を考え、ひじ掛け付ペーパーホルダーと手摺を取り付けました。
色は、壁面収納のダークブラウンと合わせ、右の薄茶色の壁にアクセントとし、モダンな空間に仕上がっています。
リモデル後のお施主様の声
生活スタイルの変化
◆3部屋が一体になり明るく・開放感のある部屋になり、普段は引戸を開け放しておりますので、風通しがとても良くなりました。
◆カビの発生も無くなり、とても快適です。
◆和室の畳も、メンテナンスのし易い半帖縁なし和紙畳を入れ、襖紙もアクセントクロスに変更し、和洋の雰囲気が良く出ていて、リフォームデザインさんの提案に大変満足しています。
リモデルしてスマイルになったこと
◆3部屋を開け放すと風通しも良くなり、とても気持ちが良くなりました。
◆自分達で気付かない提案をイロイロしていただいたので、家に帰るのが楽しみです。






