仲良し家族が集う明るく開放的な空間作り (横浜市磯子区 S様邸)
| 【建物種別】 戸建住宅 |
Concept
暗く、風通しの悪いリビング。冬は寒く、夏は暑い、不快な空間となっていました。
育ち盛りのお嬢さん、息子さんのための食事作りで何度も立っているキッチンは、狭く閉鎖的な空間でした。
お料理好きのお嬢さまと親子でキッチンに立つ際も、すれ違うのがやっと。
洗面所と浴室は風通しが悪く、ジメジメとして老朽化。
そんな老朽化して住み心地の悪くなったマイホームを全面改装により、家族が快適に過ごせ、モダンな住まいへと変身させます。
ご要望
1.リビングを開放的に風通しよくして欲しい。冬の寒さをなんとかしたい。
2.キッチンを明るく、広くしたい。コミュニケーションがとれる空間としたい。
3.暗い和室を明るくしたい。
4.洗面所・浴室を明るく、風通しよくして欲しい。
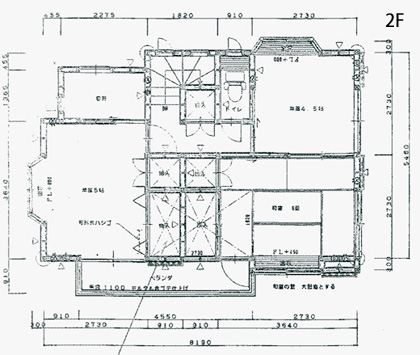
5.階段は折返し階段から直階段にしてデザイン性のあるものにしてほしい。
6.二階に高校生のお嬢様の勉強コーナーを設けてほしい。
7.湿気対策をしてほしい。
解決方法
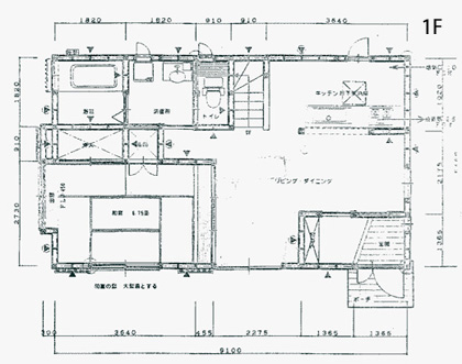
1.和室とLDKの壁をずらし、LDKを広く、風通しよい空間としました。
サッシはLOW-Eペアサッシを使用することにより断熱性能が上がりました。
2.ダイニング・キッチンをリビングと一体化。コミュニケーションの取りやすい開放的な空間としました。
3.内装リフォームで、老朽化した部分を一新。
リビング側の引戸を壁紙と一体化することにより、シンプルモダンなデザインになりました。
4.和室の壁をずらすことにより、洗面室に二方向からの通気が確保されました。
洗面室とUBにルーバー窓を設けることにより、更に通気がよくなりました。
洗面台はデザイン性の高いものを採用。モダンで快適な空間に変身しました。
5.階段は直階段に設計変更。既存部分を生かした設計としました。
手摺はデザイン性のあるアイアンを使用。
6.二階角部屋に勉強コーナーを設けました。ベイブリッジ、富士山の見える眺めのよい窓は両開きサッシを新たに設け、眺め、通気性ともに向上しました。
7.各部屋にグッドマンを設置。




階段・リビング・キッチン

リビングから丸見えの階段。

〈階段と手摺〉
既存部分を生かし、手摺はデザイン性の高いアイアンを使用。オープンでモダンに変身しました。

狭く閉鎖的な階段

階段とキッチン

抜けない柱をダーク色に。

閉鎖的なキッチン

〈キッチン〉
キッチン回りが明るく広々としました。

物があふれ、暗いリビング
浴室・洗面所・トイレ


断熱浴室で寒くない

老朽化して湿気が多いトイレ


引き戸の良さを発揮

お嬢様お気に入りの洗面台






